** A TRULY STUNNING FIVE BEDROOM DETACHED RESIDENCE SITUATED IN A MUCH SOUGHT AFTER SEMI-RURAL SETTING ON THE OUTSKIRTS OF WEST FARLEIGH **
Page & Wells are delighted to bring to the market this exceptionally well-presented family home, offered in pristine condition throughout. Having been re-configured and comprehensively modernised by the current owners, the ground floor accommodation now features open plan living with a most spacious lounge with views to the front, opening onto a superb kitchen/breakfast room. This, in turn, opens onto a fantastic dining space, which overlooks the rear garden. Further accommodation on this level includes three bedrooms (alternatively one could be used as an office), cloakroom, modern bathroom and a utility room. At first floor level, there are two bedrooms, both of which benefit from luxury en-suite facilities. The property is set well back from Charlton Lane with extensive parking facilities and there is a large garden to the rear, providing an ideal entertaining space. Being situated on the periphery of West Farleigh, the property enjoys excellent views to the rear over surrounding countryside. An internal viewing of this beautifully presented home is highly recommended. Contact PAGE & WELLS King Street Office on 01622 756703. Tenure: Freehold. EPC Rating: D. Council Tax Band: F.
KEY FEATURES
• 4 / 5 bedrooms • Two luxury en-suites • Further modern bathroom • Modern open plan living • Fantastic kitchen/breakfast room • Utility room • Good sized gardens • Stunning views over countryside to rear • Popular location
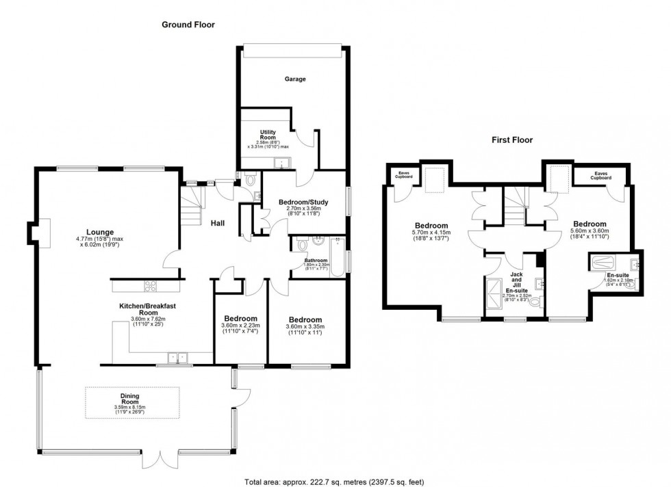
ACCOMMODATION
Ground Floor:
Spacious Reception Hall
Cloakroom
Lounge
Opening to ...
Kitchen/Breakfast Room
Opening to ...
Dining Room
Bedroom
Bedroom
Bedroom/Study
Bathroom
Utility Room
First Floor:
Bedroom
• En-suite Shower Room
Bedroom
• En-suite Shower Room
EXTERNALLY
The property is set well back from Charlton Lane with extensive parking facilities to the front and a large garden to the rear.
VIEWING
Viewing strictly by arrangements with the Agent’s Head Office: 52-54 King Street, Maidstone, Kent ME14 1DB. Tel: 01622 756703.