Price £1,300,000
4 3 2
Call us today and book
a viewing on
01622 756 703
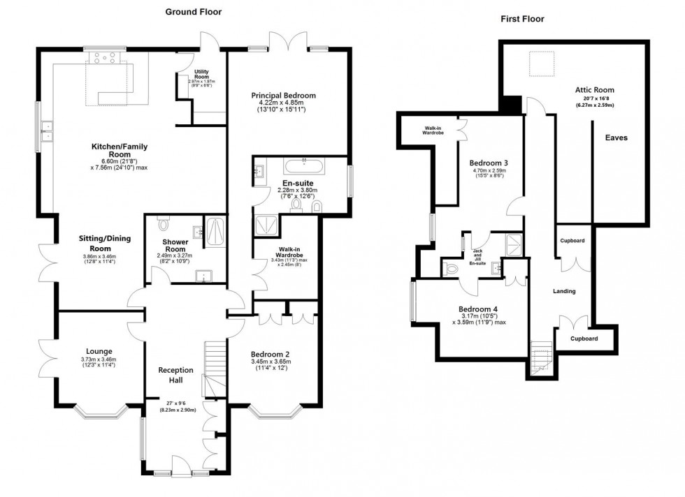
Entrance door to ...
Natural oak flooring. Staircase to first floor. Range of fitted book shelves. Two boxed radiators. Double glazed leaded light window. Two built in cloaks cupboards.
Double aspect room with double glazed double doors with fitted shutters opening to the garden terrace. Bay window with fitted shutters.
The KITCHEN AREA has an extensive range of granite work surfaces with cupboards and drawers under. Inset twin bowl stainless steel sink unit with mixer tap and cupboards under. Range of wall cupboards. Breakfast bar. Built in Fisher Paykel double dishwasher. Two separate Smeg pyrolytic ovens and microwave. Built in wine fridge. Samsung fridge/freezer with ice maker and cold water supply. Box radiator. Sky light. Inset ceiling lighting. This beautiful room incorporates a ...
Double aspect with a sizeable sky light. Door to south facing terrace.
Work surface with space under. Range of wall cupboards. Plumbing for washing machine. Tiled flooring. Inset ceiling lighting. Door to garden.
Leading to the master suite with oak flooring.
A beautifully proportioned principal bedroom with inset ceiling lighting. Double glazed double doors opening to the garden with fitted shutters.
Fully fitted walk-in dressing room.
Free standing bath with side mounted mixer tap. Bidet. Shower enclosure with thermostatically controlled overhead shower.. Low-level WC. Wash hand basin in vanity unit with cupboards and drawers under. Inset ceiling lighting. Recess with glass display shelving.
Double glazed bay window with fitted shutters. Range of built in wardrobe cupboards.
Shower enclosure. Wash hand basin. Low-level WC.
Range of built in cupboards. Access to ...
Inset ceiling lighting.
Double glazed windows with lovely far reaching views. Door to ...
Low-level WC. Wash hand basin in vanity unit with cupboards under. Shower enclosure with thermostatically controlled overhead shower. Inset ceiling lighting.
Range of built in wardrobe cupboards. Double glazed window again with lovely views. Door to Jack and Jill shower room.
Providing a very useful storage area with hot water tank.
The property is approached from North Pole Road through wrought iron electronically operated double gates. A long pea shingled driveway leads to the property widening to provide very extensive parking and turning and in turn gives access to ...
Electronically up and over door. Power and light. Glass screen shielding staircase to first floor with a useful OFFICE/PLAY ROOM.
Power and light.
Central heating. Cloakroom with wash hand basin and low-level WC.
Double glazed double doors. Wood burning stove.
Providing a forge with double doors.
The gardens, which extend to about one third of an acre, are a delightful feature of the property with extensive areas of lawn interspersed with a variety of ornamental trees and shrubs. Well stocked flower beds. There is a sizeable south facing terrace with views out over the adjoining farmland and beyond. Set in the corner of the garden is a lovely covered seating area with brick pillars for evening drinks.
Viewing strictly by arrangements with the Agent’s Head Office: 52-54 King Street, Maidstone, Kent ME14 1DB. Tel: 01622 756703.
Leave Maidstone on the A26 Tonbridge Road. Proceed through Barming, turn right into North Street and continue on before continuing into North Pole Road. Fellgarth will be found after a short distance on the left hand side.