** A WELL-PRESENTED THREE BEDROOM SEMI-DETACHED FAMILY HOME WITH A CONVERTED GARAGE USED AS A SELF-CONTAINED STUDIO **
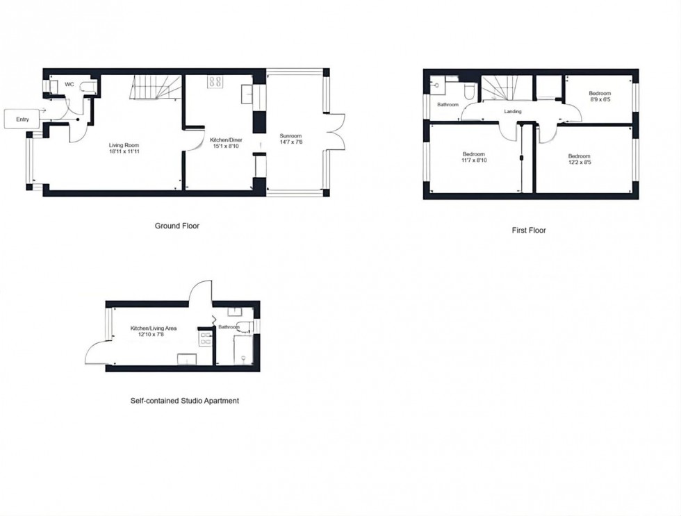
Page & Wells are delighted to bring to the market this modern family home situated in a convenient location on the Maidstone/Barming borders. The ground floor accommodation features a spacious living room, cloakroom, a well-designed kitchen/diner and a sunroom, whilst the first floor offers three bedrooms and a modern family bathroom. There is off-road parking facilities for numerous vehicles, a pleasant rear garden and a converted garage, currently used as a self-contained studio. There are no forward chain implications and an internal viewing is recommended. Contact Page & Wells King Street Office on 01622 756703. Tenure: Freehold. EPC Rating: C. Council Tax Band: D.
KEY FEATURES
• 3 bedrooms • Lounge • Well-designed kitchen/diner • Downstairs WC • No chain • Garage converted into self-contained studio apartment • Sought after location
ACCOMMODATION
Ground Floor:
Entrance Hall
Cloakroom
Living Room
Kitchen/Diner
Sunroom
First Floor:
Bedroom One
Bedroom Two
Bedroom Three
Family Bathroom
EXTERNALLY
There is off-road parking facilities for numerous vehicles, a pleasant rear garden and a converted garage, currently used as a self-contained studio apartment.
VIEWING
Viewing strictly by arrangement with the Agent’s Head Office: 52-54 King Street, Maidstone, Kent ME14 1DB. Tel: 01622 756703.