The property is situated in a popular residential area close to Maidstone town centre. The county town offers a wide range of shopping, educational and social facilities together with two mainline stations.
The property comprises a spacious three bedroom family house which has been owned by our clients for almost 60-years. The house has attractive brick elevations under a tiled roof and benefits from gas fired central heating. There is a very good size garden to the rear and internal inspection is thoroughly recommended by the sole selling agents. Contact: PAGE & WELLS King Street office 01622 756703.
EPC rating: D Council tax band: B Tenure: freehold
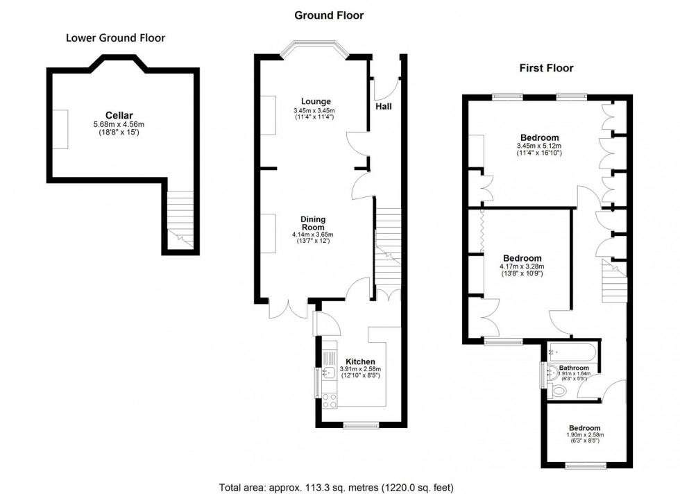
GROUND FLOOR:
Entrance Porch
Double glazed entrance door to ...
Entrance Hall
Staircase to first floor.
Lounge: (3.45m x 3.45m)
Bay window to the front elevation. Sealed fireplace. Wide archway to ...
Dining Room: (4.14m x 3.66m)
Wall mounted gas fire. Recessed cupboards. Double glazed double doors opening to the garden.
Kitchen: (3.91m x 2.57m)
Double aspect room enjoying a good range of work surfaces with cupboards, drawers and space under. Inset single drainer sink unit with mixer tap and cupboards beneath. Range of wall cupboards. Plumbing for washing machine and dishwasher. Beko gas oven, 4-ring hob and grill over. Alpha wall mounted gas fired boiler serving central heating and domestic hot water. Part glazed door to garden. Door to ...
LOWER GROUND FLOOR:
Cellar: (5.69m x 4.57m)
Gas and electric meters. Useful storage area.
FIRST FLOOR:
Landing
Shelved cupboards. Access to roof space.
Bedroom: (5.13m x 3.45m)
A well proportioned principal bedroom with double glazed windows to the front elevation. Recessed wardrobe cupboards. Further fitted wardrobe cupboards.
Bedroom: (4.17m x 2.90m)
Double glazed window to the rear elevation. Original fireplace. Recessed wall cupboards.
Bedroom: (2.57m x 1.91m)
Double glazed window to the rear elevation.
Family Bathroom: (1.91m x 1.65m)
Panelled bath with mixer tap and shower attachment. Low-level WC. Pedestal wash hand basin. Tiled walls. Double glazed window to the side elevation.
EXTERNALLY:
There is a small area of garden to the front. Side access leads to a very good size rear garden that extends in depth to about 110'. Immediately behind the house is an extensive paved terrace leading on to an area of lawn. A pathway leads down to a sizeable garden store.
VIEWING
Viewing strictly by arrangements with the Agent’s Head Office: 52-54 King Street, Maidstone, Kent ME14 1DB Tel - 01622 756703 Email – Maidstone@page-wells.co.uk
DIRECTIONS
Leave Maidstone on the A229 Upper Stone Street. Turn right into Campbell Road where the property will be found on the right hand side.